建筑规划

ARCHITECTURAL PLANNING

总体规划

Overall Plan

国际5A写字楼,新经济强磁场

纯办公,纯租赁,层峰精英合纵国

丹下都市建筑设计一流设计作品,打造永恒与现代融合建筑。稳健的地标造型,精湛细腻的材质工艺,恒久百年的外墙西班牙石材,与大上海都市风貌珠联璧合。流畅的动线设计,舒适的楼层高度,于上海市中心闹中取静的商务氛围,出入尽皆高素质企业人士和商务精英。都市总部大楼采用纯租赁经营方式,聘请戴德梁行进行专业管理,确保大楼自始至终维持楼宇的高品质、租户的高层次、管理服务的高水准。

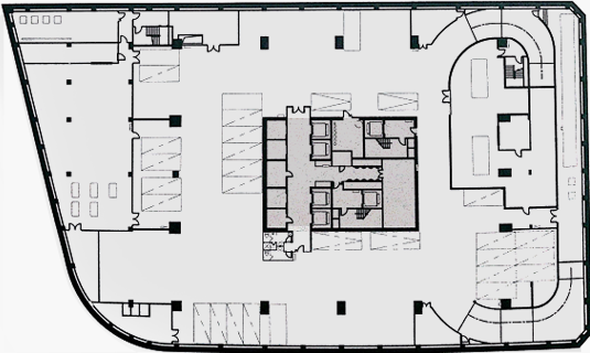
各楼层平面

Floor Plans

  • 弹性办公空间,自由分割组合

    敞开式无柱设计,面积大小随您所需

    分高低区,设有8部客梯、2部货梯,每层设独立茶水间
    大楼西面直对上海市中心最大人民广场绿地
    十字型走道设计,动线简洁,步出电梯即可直抵东西南北四入口

  • 标准楼层平面图
  • 地下车库平面图